raminas

Рейтинг
74
Регистрация
17.10.2008
6666:
если нужно будет кататься каждый день в город на работу, то надо пять раз подумать.

Пока не нужно. Но если вдруг, да за очень хорошим окладом, то есть еще родительская квартира, я так и так в ней по полгода живу, пока они на даче. :)

Vita-Nika:
Показывай план.

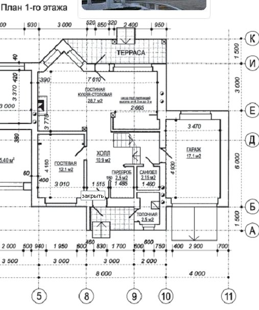
Показываю. мучилась, банер отрезала - он везде лезет. :)

Что-то сейчас не найду тот, который на 140 квадратов.

В общем, вот, что мне понравилось пока на бумаге. В этом домике 200 кв.м. + 2 сотки земли. Бюджетный вариант - стоит 5 млн. Стены кирпич, пеноблоки.

Евген:
наверху 2-3 спальни по 20-15 метров.

Да. Спальни метров по 23 и еще кабинет над гаражом.

Сейчас найду план, который мне понравился, а то у меня на цифры память не очень. :)

Евген, по метражу - от 140 квадратов. Т.е. 70+70 на каждый этаж. Трехэтажные не смотрю - дорого уже получается. :)

Гаражи везде по проекту предусмотрены. А земли - минимум видела 1 сотку, а так 2-3 в основном, но это без учета подъезда, навроде заднего дворика.

Kuloresov:
как можно покупать двушку в Москве по цене вилы на лазурном берегу

Это цена в рублях. :) Если на доллары перевести, то где-то 200 тыс. получается.

Сеодром:
Съездили б туда вдвоем с сыном, без риэлтора. Пообщались бы с уже поселившимися там людьми - они бы и поведали все минусы именно того поселка...

Да, так и сделаем. Спасибо! :)

Сам пришел:
сия истина к России, а уж тем более, к Москве неприменима.

И здесь согласна, да и мода на таунхаусы может так же быстро закончиться, как и началась. :) Хотя, продается все, если цену не задирать. Все-таки, какая-никакая, а недвижимость.

В общем, я опять в сомнениях. :D

mumur, прикидывала, вдвоем с сыном справимся. Правда, в детали еще не вдавалась. А вот насчет ликвидности не знаю. Сейчас эти поселки строят в великом множестве. Наверное, спрос есть, раз столько строят. :)

raminas добавил 27.06.2010 в 11:02

Сам пришел:
в пределах 30-60 км по Новорижскому есть масса отличных дачных поселков.

Это да. Но зимой они полупустые стоят, как-то страшновато. Я ведь там буду жить постоянно. :)

lexxx:
Кстати, Калужское шоссе 18км от Мкад

Спасибо, но это южное направление, а у меня дача по Новой Риге, 150 км. :)

raminas добавил 27.06.2010 в 10:20

Сам пришел:
прописку оставите московскую

Московскую.

А в чем экономия?

zaka4ek:
Как далеко от МКАД поселок? И по ценам не соориентируете сколько сейчас красота такая стоит?

Если решусь, то км 30-40 по Новорижскому или Дмитровскому шоссе.

Такая красота, как на картинке, не знаю, я ее просто для примера показала. А то, к чему я приценяюсь, в районе 6-7 млн., т.е. стоимость стандартной двушки в Москве.

Всего: 13286